przynależności
| Nazwa | Typ | Cena |
|---|---|---|
| A5 | Miejsce postojowe w garażu podziemnym | 49 000 zł |
| K-1/KO/29 | Komórka Lokatorska | 22 850 zł |
Cena całkowita wraz z przynależnościami
527 610 zł
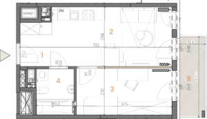
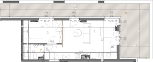
1. Komunikacja
2,25 m2
2. łazienka
4,46 m2
3. sypialnia
10,76 m2
4. salon + aneks
20,51 m2
razem
37,98 m2
B. Balkon
6,44 m2
Bezpośrednie sąsiedztwo Galerii Echo zapewnia dostęp do rozrywki, sklepów i usług na wyciągnięcie ręki, oferując jednocześnie spokój i prywatność.
Biedronka vis a vis (50 metrów) oraz Aldi w odległości 1000 metrów gwarantują wygodne i szybkie zakupy.
Bliskość Uniwersytetu Jana Kochanowskiego (900 m) i Politechniki Świętokrzyskiej (700 m) czyni NEO AGAT atrakcyjnym miejscem dla studentów i wynajmujących.
Szybki dostęp do S74 i wschodniej obwodnicy Kielc ułatwia podróże do innych części kraju.
Legenda:
- Dyskont spożywczy Biedronka
50 metrów: 1 minuta pieszo, nie opłaca się odpalać auta 😊 - Dyskont spożywczy Aldi
1000 metrów: 13 minut pieszo/3 minuty autem - Szkoła Podstawowa nr 15
1100 metrów: 14 minut pieszo/3 minuty autem - Uniwersytet Jana Kochanowskiego
1700 metrów: 23 minuty pieszo/5 minut autem - Politechnika Świętokrzyska
1300 metrów: 18-21 minut pieszo/5 minut autem - Galeria Echo
1100 metrów: 15 minut pieszo/3 minuty autem - Galeria Korona
1800 metrów: 25 minut pieszo/5 minut autem - Park Adolfa Dygasińskiego
1700 metrów: 24 minuty pieszo/6 minut autem - Rynek w Kielcach
2000 metrów: 28 minut pieszo
Formularz kontaktowy
Nasi specjaliści są gotowi, by opowiedzieć Ci więcej o NEO AGAT i pomóc odnaleźć miejsce, które stanie się częścią Twojej własnej historii.
Porozmawiajmy!

