przynależności
| Nazwa | Typ | Cena |
|---|---|---|
| B14 | Miejsce postojowe w garażu podziemnym | 49 000 zł |
Cena całkowita wraz z przynależnościami
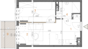
1. Hol
4,14 m2
2. łazienka
3,92 m2
3. pokój
8,34 m2
4. salon + aneks
13,72 m2
razem
30,12 m2
B. Balkon
7,22 m2
Metraż pomieszczeń
Numery pomieszczeń odpowiadają oznaczeniom na planie mieszkania.1. Hol
4,14 m2
2. łazienka
3,92 m2
3. pokój
8,34 m2
4. salon + aneks
13,72 m2
razem
30,12 m2
B. Balkon
7,22 m2
Podobne mieszkania w inwestycji
Zobacz inne dostępne mieszkania o zbliżonym metrażu i cenie.
Mieszkanie M59
Mieszkanie M45
Mieszkanie M30
Mieszkanie M28
Bezpośrednie sąsiedztwo Galerii Echo zapewnia dostęp do rozrywki, sklepów i usług na wyciągnięcie ręki, oferując jednocześnie spokój i prywatność.
Biedronka vis a vis (50 metrów) oraz Aldi w odległości 1000 metrów gwarantują wygodne i szybkie zakupy.
Bliskość Uniwersytetu Jana Kochanowskiego (900 m) i Politechniki Świętokrzyskiej (700 m) czyni NEO AGAT atrakcyjnym miejscem dla studentów i wynajmujących.
Szybki dostęp do S74 i wschodniej obwodnicy Kielc ułatwia podróże do innych części kraju.
Formularz kontaktowy
Nasi specjaliści są gotowi, by opowiedzieć Ci więcej o NEO AGAT i pomóc odnaleźć miejsce, które stanie się częścią Twojej własnej historii.
Porozmawiajmy!

